Преимущества ArchiCAD
Основное преимущество ArchiCAD — взаимосвязь между всеми частями проекта. Благодаря технологии «виртуального здания» (BIM) вы можете работать не с отдельными чертежами, которые физически не связаны, а со всем проектом сразу. Например, изменения на плане здания автоматически отобразятся на разрезах, в спецификациях, экспликациях. Это помогает не только работать быстрее, но и обнаруживать и устранять большинство проблем, которые могли бы проявиться на поздних этапах проектирования и строительства.
С помощью ArchiCAD вы можете создавать дизайн-модели с их конструктивными деталями и точными расчётами строительных материалов: железобетона, древесины, стали, композитных балок и колонн. ArchiCAD поддерживает импорт и экспорт файловых форматов DWG, DXF, IFC и BFC.

Разработка фундамента
При разработке модели дома, в первую очередь, проектируют фундамент. Именно его разработке посвящено видео. Состоит из 4-х частей. В 1 части — закладка фундамента. Приступают к построению с фундамента, выбирая для этого инструмент «Стена», задают материал и высоту во вкладке «Параметры». Размеры расположения элемента задают с учетом, что он будет ниже уровня земли, поэтому значения будут отрицательные. Чтобы увидеть фундамент, переключаются в панели навигации на подземный этаж и выставляют ширину этого элемента. Выстраивают основной фундамент, добавляют подушку. Модель строят в плоском виде, но ее всегда можно посмотреть в трехмерном. 2 часть — проектирование 1-го этажа. 3 —2-го этажа и дверей. Заключительная 4 часть — расстановка оконных проемов.
Obucheniedoma
Особенности курса:
- Изучение программы с нуля от настройки интерфейса и до создания 3д модели коттеджа
- Последовательное обучение от вставки картинки плана, до создания кровли
- Никакой воды, только конкретика. Это НЕ записи вебинаров (где 80% времени — болтовня ни о чём), а полноценные видеоуроки
- Большой объём информации за минимальное время. Вы получаете все уроки сразу, не дожидаясь несколько дней
Для кого этот курс:
- Для Архитекторов и проектировщиков;
- Для Студентов ВУЗов направлений: архитектура, строительство, дизайн;
- Для тех, кто хочет узнать подходит ему ArchiCAD для работы или нет.
- Для Дизайнеров интерьеров;
- Для тех, кто хочет сам смоделировать свой дом с учётом своих особенностей;
- Для фрилансеров, ищущих дополнительные возможности заработка.
Archicad master
Курсы и видеоуроки с инструкциями помогут начинающим изучение ARCHICAD сразу получить полное представление о возможностях и функционале программы, а затем закрепить знания, выполняя практические упражнения.
Среди учеников курса: инженеры, архитекторы, строители, дизайнеры (интерьерные и ландшафтные), проектировщики
По итогам обучения на программе BIM Start вы научитесь:
- С нуля настраивать под себя интерфейс и инструменты программы.
- Работать с системами координат и основными элементами ARCHICAD – дверями, проемами, окнами, стенами и т. д.
- Быстро создавать 3-х мерные изображения, например, фасады.
- Правильно выставлять свет.
- Готовить рабочие чертежи для распечатки.
Объекты ARCHICAD
В Библиотеке ARCHICAD не так много объектов. Но благодаря тому, что каждый элемент можно настраивать. Мы можем получить множество различных представлений объекта, как в 3D так и в 2D. То есть он является параметрическим.
Доступ к большинству библиотечных объектов осуществляется через команды. Они находятся на панели инструментов.

Немного пробежимся по основным из них.
Дверь/Окно
Через эти команды осуществляется доступ ко всем объектам дверей, окон и пустых проемов. Настройки этих объектов очень гибкие. Мы можем настраивать абсолютно всё. Не только размеры проемов и элементов конструкции.
Можно добавить ручки, подоконники, пороги, отливы, наличники, ставни, жалюзи и многое другое. И всё это для каждого объекта этих типов.
Лестница
С помощью этого типа библиотечного элемента мы можем создавать лестницы различной формы. А также добавлять к ним различные аксессуары в виде отделки.
Настраивать 2D представление. Например, редактировать линию восхода. Кстати, это тоже отдельный библиотечный элемент. Но доступен он только через команду «Лестница».
Ограждение
С лестницей связан инструмент ограждение. Объект тоже параметрический и отлично поддается редактированию. Мы можем настроить каждую составляющую ограждения. Например, панель ограждения или поручень. Всё это тоже отдельные библиотечные элементы. Они также доступны только инструменту ограждение.
Объект
Это команда дает нам доступ к различным 3D моделям конструкций, оборудования, мебели, сантехники и различным объектам для визуализации. Также через команду «Объект» доступны некоторые параметрические 2D элементы.
Источник света
С помощью этой команды мы можем воспользоваться различными источниками освещения. Это могут быть как физические источники света, заметные только на рендере. Так и 3D модели люстр и различных светильников.
Давайте выберем какой-нибудь стандартный объект и настроим его. Посмотрим насколько сильно его можно изменить относительно стандартного вида.
Для того чтобы настроить любой объект нужно перейти в его параметры. Сделать это просто. Нужно кликнуть по инструменту в панели два раза.
Я выберу самый простой Библиотечный элемент «Окно 23».
Структура окна параметров для любого типа библиотечного объекта всегда одинакова. Слева располагаются папки с объектами и их изображения предпросмотра. Справа окно параметров. Настройки объекта разбиты по смыслу на отдельные страницы.
Кликните на строку «Параметры Окна и Открывание…» и вы увидите полный список страниц с параметрами. Через них настраивается библиотечный элемент.

Настроек и параметров очень много. Но с ними легко разобраться благодаря понятной структуре страниц.
Как работать с дверьми и окнами мы разбираемся в нашем бесплатном курсе «Базовый курс по ARCHICAD
Я настроил окно, посмотрите, как сильно оно может измениться:

Как создать объект в ARCHICAD
Любую модель, созданную в ARCHICAD, можно сохранить как библиотечный элемент. Конечно, объект не будет параметрическим. В нем не будет множества настроек, как в элементах из стандартной библиотеки.
Для написания параметрических объектов используется встроенный язык программирования GDL.
Но все же функция создания объектов необходима. Допустим, вы смоделировали какой-то объект морфом. Он может состоять из множества элементов. Его будет сложно использовать повторно, скопировать или переместить.
Нужно сохранить модель как объект. Все станет гораздо проще. Тем более, объект весит намного меньше, чем любая модель, созданная в ARCHICAD.
Давайте попробуем сохранить какую-нибудь 3D модель как объект.
Для начала нам нужно выбрать все необходимые элементы в 2D или 3D окне. Затем перейти в меню «Файл» → «Библиотеки и Объекты» → «Сохранить Выбранное Как…» → «Объект…».
В открывшемся меню «Сохранение Объект» задаем имя новому объекту и жмем «Сохранить».
Появится окно «Изменение Параметров Объекта». Через него мы можем изменить перья, материалы и покрытия объекта. Но это не обязательно. Эти параметры сохраняться в самом объекте и их можно менять. Жмем ОК.
Элемент появится во вложенной библиотеке. Он будет доступен через инструмент «Объект».

Отлично, самый простой и быстрый объект создан.
Этим способом можно сохранять библиотечные объекты для окон, дверей и их элементов. А также для лестниц, навесных стен и ограждений.
Как создать окно любой формы и сохранить его как объект, мы рассказываем в нашем курсе «ARCHICAD на 100%».
Надеюсь, теперь вы понимаете, из чего состоит библиотека ARCHICAD. А также сумели создать простой объект и разместить его в своем проекте. Это была обзорная статья. В скором времени мы продолжим тему библиотек и библиотечных элементов в ARCHICAD.
ARCHICAD
Ответы на вопросы
Смогу ли я учиться, если я совсем ничего еще в этом не понимаю?
Да, конечно. Обучение проходит с нуля до полного понимания принципов работы программы и создания первого удачного проекта.
Если я много работаю и у меня практически нет свободного времени, смогу я заниматься, когда мне это будет удобно?
Безусловно. Обучение на всех курсах проходит в формате записанных видео уроков, которые студенты просматривают в удобное для них время. Задания после уроков можно выполнять в свободное время, а преподаватель индивидуально их будет проверять по мере поступления.
Если я уже практикующий специалист, эти курсы будут мне полезны?
Да, вы сможете расширить свои знания, повторить забытый материал и узнать основы общения с клиентами и пути выхода из сложных или кризисных ситуаций во время работы.
Я смогу спроектировать дом своей мечты после обучения?
Да, если ваша цель – суметь создать собственный проект и не нанимать кого-то, то у вас это получится. Курс дает знания и умения для проектирования
И не важно, будут ли использоваться эти знания для дальнейшей работы или для создания проекта собственного дома
Смогу ли я научиться пользоваться 3D макетами, создавать собственный интерьер и размещать мебель на макете для наглядности?
Да, вы научитесь визуализировать дизайн интерьера и моделировать проекты в 2D и 3D форматах.
Skyarchmag
Особенности курса:
ДОСТУП К КУРСУ НАВСЕГДА
Все занятия записываются и остаются с вами навсегда
СЕРТИФИКАТ ПО ОКОНЧАНИЮ ПРОХОЖДЕНИЯ КУРСА
Вы получаете официальный сертификат разработчика ARCHICAD компании Graphisoft.
ИНДИВИДУАЛЬНЫЙ ПОДХОД
Это главное отличие от подавляющего большинства школ. Им есть дело и время до каждого участника все время в течении курса и после его окончания. На курсе разбирается множество вопросов и примеров участников.
ПРОДОЛЖИТЕЛЬНОСТЬ КУРСА 3 МЕСЯЦА
Курс длится 3 месяца, в течении которого участники осваивают самые главные принципы работы в ARCHICAD. Никакой воды, только проверенные методы, подтвердившие свою эффективность на практике.
ФОРМАТ ОБУЧЕНИЯ: ОНЛАЙН
Вы получаете доступ к онлайн платформе, где будут размещаться все уроки. В сложных ситуациях с вами будут связываться по skype, живые консультации не ограничены по времени и количеству. На простые вопросы будут приходить ответы в формате видео.
Нет знаний в сфере проектирования или дизайна. Как быть?
Нас часто спрашиваю, как освоить профессию, если в ВУЗе не учился? Уже нет на это времени. В интернете курсов тоже таких нет… Ведь это колоссальный объем информации. Профессии обучаются 5 лет. Да и вообще, можно ли самому со всем этим разобраться? Задача очень сложная, но вполне реальная. Вот вам пошаговый чек-лист от человека, который прошел невероятный путь от грузчика до высококлассного проектировщика!
ШАГ 1. Как заставить себя учиться?
Мы определились, что хотим освоить что-то новое, сложное, непонятно. С чего начать?
У вас есть желание или мечта, например, стать дизайнером интерьеров. Эту мечту надо «перепрограммировать» у себя в голове на цель. А дальше ищите возможность достижения своей цели. Главное не искать причины «Почему я не могу этого сделать?», а искать ответы на вопрос «Как это сделать?».
ПРИМЕР:
|
Что имеем? |
Работаю кассиром |
|
|
Чего хотим? |
Хочу быть дизайнером! |
|
|
О чем думаем? |
Но я же не могу бросить работу! У меня дети. Времени на учёбу совсем нет. А вдруг не получится? |
Как бы мне научиться дизайну? Работаю я до 20-00, дети ложатся спать в 22-00. Полежу 30-60 минут, посмотрю «обучалки» всякие в интернете. Лягу спать на час позже, но сегодня буду ближе к своей цели! |
|
РЕЗУЛЬТАТ через 5 лет |
Полный провал! Кассир, который не довольный своей работой / жизнью / окружением |
Успешный дизайнер, который работает с премиум сегментом. Возможность путешествовать и получать кайф от жизни. |
Вывод: мотивируем себя и начинаем изучать все, что есть в открытом доступе. Смотрим YouTube, читаем статьи, нормативные документы. Собираем базу знаний на компьютере.
ШАГ 2. Ищем рабочий инструмент
Знания – важная часть, но этого недостаточно. Теперь нужно найти рабочий инструмент. Он есть у любого ремесленника: у визажиста – косметика, у таксиста – машина, у повара – целый арсенал инструментов и оборудования. А что должно быть в руках проектировщика? Современная программа!
Проект должен быть, как конструктор Lego! Не равняйтесь на других, если вас что-то смущает. Не понятный проект, есть вопросы? Значит нужно сделать лучше!
ШАГ 3. Подключаем тяжелую артиллерию. Ищем спецов, которые помогут.
После того, как был проработан весь материал в открытом доступе нужно задуматься о прокачке своих скилов. Самое время найти профессионалов и перенять у них опыт.
Не думайте, что специалисты будут нянчиться с вами. Им просто некогда. Похвально, если вы их нашли и даже сумели пообщаться через соц.сети или почту. Но дальше этого дело не сдвинется. Здесь лучше поискать курсы.
На бесплатном материале далеко не уедешь! Не нужно думать, что это развод. Бесплатный курс – это пробник. Чтобы вы могли оценить качество подачи материала, сделать свои первые шаги и определиться, нужен ли вам полный курс. Ведь сейчас в интернете каждый второй готов вас научить за хорошее финансовое вознаграждение. И чтобы найти нормальный курс, нужно потратить много времени на анализ и сравнение материала. Так Илья пришел к нам на курс «Использование ARCHICAD на 100%»
ШАГ 4. Делаем классное портфолио!
Единственный аргумент для работодателя – это пример вашей работы. Очень здорово, что, проходя курс в AMS, вы сразу создаете портфолио. Затем рассылаете его в компании и фирмы. Ждете. Хорошо оформленный проект = успех!
Сотрудничество и управление данными
Ещё один плюс ArchiCAD — возможность совместной работы над проектом. Команда специалистов может одновременно выполнять задачи в облаке Graphisoft BIM. Развитая система Teamwork экономит время проектировщиков и помогает не допустить несоответствий в частях проекта, которыми занимаются разные специалисты.
Беспрепятственный и прозрачный обмен информацией укрепляет доверие между членами команды, и это помогает проектировать здания более качественно. Благодаря уведомлениям в режиме реального времени и чёткой визуализации изменений в модели, команда может оперативно принимать решения. ArchiCAD позволяет работать в команде независимо от того, какое программное обеспечение используют специалисты.
Параметры вида в ARCHICAD
Если вы уже сохранили вид и хотите изменить его параметры, например параметр «Графическая Замена». Используйте для этого только параметры вида. Настройки через меню и нижнюю панель не будут работать.
Чтобы перейти в параметры кликните правой кнопкой мыши по необходимому виду и выберите пункт «Параметры Вида…». В открывшемся окне производим необходимые настройки и жмем кнопку «ОК».

Мы узнали как создавать виды и работать с картой видов. Виды – это важный элемент BIM проекта в ARCHICAD. Поэтому всегда используйте их в своем проекте.
Мы делаем виды для того, чтобы разместить их в макете. Это позволит вывести на печать чертежи. О том, как работать с макетами, читайте в нашей статье – «Макеты в ARCHICAD».
ARCHICAD
Курс проектирования и визуализации в ArchiCAD и Artlantis
Второй курс видео уроков Архикад на русском также затрагивает базовые работы в редакторе, но при этом имеет больший уклон именно на визуализацию проектов с помощью приложения «Artlantis». Пользователь научится создавать проекты с максимально реалистичной визуализаций. По окончанию изучения информации в Вашем арсенале будут иметься два новых инструмента – Artlantis и ArchiCAD. Длительность видеокурса составляет 15 часов, каждой теме посвящен отдельный видеоролик.
Ознакомиться с форматом обучающих видео вы можете, просмотрев первые 5 уроков. Загрузка полного курса доступна в конце новости.
Общее описание построения курса видеоуроков.
https://youtube.com/watch?v=Tivuz_bnw4w
Учимся создавать новый проект, интерфейс рабочей области и основные инструменты.
https://youtube.com/watch?v=tZvGT5C-IZw
Настраиваем рабочую область, изучаем, как сделать стены в Архикаде, как работать со слоями и структурной сеткой.
https://youtube.com/watch?v=ypy7TawriOs
Управление изображением в различных окнах проекта, построение линий, дуг, эллипсов и окружностей.
https://youtube.com/watch?v=wZAMFtx3WGE
Учимся работать с библиотечными объектами при создании модели здания.
https://youtube.com/watch?v=98lwh4nDLSw
День первый. ArchiCAD• Как правильно настроить интерфейс программы для удобной работы;• Создавать и редактировать линии;• Общим методам редактирования любых объектов программы;• Использовать систему привязок при выполнении построений в программе;• Работать с инструментами измерения.
День второй. ArchiCAD• Как правильно настроить рабочую среду проекта;• Создавать и работать со слоями;• Настраивать и использовать в проекте конструктивную сетку;• Создавать, настраивать и редактировать конструктивный элемент Стена;• Настраивать этажи, создать этаж Фундамент сквозного проекта.
День третий. ArchiCAD• Как настраивать и создавать конструктивный элемент перекрытие для полов и потолков;• Создавать и работать со конструктивным элементом Колонна;• Копировать конструктивные элементы с этажа на этаж на примере сквозного проекта.
День четвертый. ArchiCAD• Использовать в проекте библиотечные элементы Окна, Двери и т.д.• Применять в проекте библиотечные элементы из внешних библиотек;• Создавать собственные бибилиотеки с использованием раздела «Избранное».
День пятый. ArchiCAD• Создавать и редактировать стандартные лестницы;• Создавать и настраивать лестницы с помощью Stair Maker;• Устанавливать и настраивать ограждения.
День шестой. ArchiCAD• Создавать и редактировать односкатные крыши;• Создавать и настраивать многоскатные крыши;• Создавать стропильную систему крыши с помощью Roof Maker;• Использовать инструмент Оболочка для создания различных сложных крыш;• Подрезать стены, перегородки, перекрытия под крышу;
День седьмой. ArchiCAD• Как создавать собственные и редактировать существующие в ArchiCAD линии, штриховки, покрытия;• Создавать, настраивать и редактировать объект 3D сетка для моделирования ландшафтов;• Использованию библиотечных элементов для благоустройства ландшафта;
День восьмой. ArchiCAD• Как создавать и редактировать разрезы и фасады;• Создавать, настраивать и редактировать размеры на чертежах проекта;• Создавать обмерного плана проекта;• Создавать планов потолков и полов.
День девятый. ArchiCAD• Как использовать библиотечные объекты в планах;• Как создать план электрики помещения.
День десятый. ArchiCAD• Оформлять любые чертежи проекта;• Подготовить файл проекта для дальнейшей работы в программе Artlantis.
День одиннадцатый. Artlantis• Работать с интерфейсом программы;• Основным способам работы в программе;• Настраивать параметры среды: воздушная дымка, построение теней, задний план;• Работать с источникам света солнце.
День двенадцатый. Artlantis• Создавать, редактировать и настраивать объекты в программе ARtlantis.• Вот несколько скриншотов видеуроков двенадцатого дня.
День тринадцатый. Artlantis• Создавать, редактировать и настраивать материалы;• Работать с искусственными источниками света;• Устанавливать дневное, вечернее и искусственное освещение сцены;• Настраивать тестовую и финальную визуализацию.
День четырнадцатый. Artlantis• Создавать, редактировать и настраивать параллельные ракурсы;• Создавать и настраивать панорамы;• Создавать виртуальные сцены;• Настраивать анимацию.
Скачать весь курс по проектированию и визуализации
BIM Components
Преимущество этого ресурса в том, что объекты из него загружаются прямо в ARCHICAD.
Перейдите в окно параметров нужного инструмента и введите в строке поиска название объекта.
Объекты с ресурса BIM Components будут отображаться в окне предпросмотра с соответствующей иконкой в правом нижнем углу. Его можно загрузить в библиотеку, нажав на кнопку «Загрузить и Вложить».

Чтобы загружать объекты с BIM Components, нужно подключение к интернету.
Загружать объекты таким способом не всегда удобно. Вы можете перейти на сайт https://bimcomponents.com/, найти необходимый объект и просто перенести его в окно ARCHICAD.

Как видите я загрузил объект окна, поэтому он доступен через инструмент «Окно».
Чтобы загружать некоторые объекты с сайта BIM Components, нужно зарегистрироваться и войти в учетную запись.
Архикад – что это такое
Такое программное обеспечение в первую очередь требуется для тех людей, которые хотят заниматься разработкой собственноручно или чтобы облегчить труд для архитекторов. Посредством нее специалист, который научился в ней работать, сможет составлять проект производственного или жилого здания. Но учтите, что при этом ее возможности не ограничиваются. Посредством такой программы можно заниматься остальными разновидностями трехмерного программирования. Она прекрасно подойдет, если вам хочется проектировать самостоятельно домашний интерьер или предметы мебели. Посредством Архикада можно с эффективностью работать над проектами и эскизами в области ландшафтного дизайна. Чтобы эффективно работать в данной системе для автоматизированного проектирования, требуется обязательно пройти обучение по урокам создания каркасных домов в Архикаде, а также тщательно усваивать все фишки по работе с программой.
При этом программное обеспечение дает возможность качественно делать чертежи и сразу же показать рабочий результат в трехмерном виде. При рабочем процессе архитектор сможет с легкостью посмотреть, что у него вышло, и исправить недостатки, если они будут. Такая программа может не просто работать с чертежами, но и заниматься остальной документацией – техническими условиями, ведомостями, сметами и остальными. В программном обеспечении есть много полезных инструментов, которые дадут возможности делать и довольно простые, так и крайне сложные модели. Начинающие пользователи такой программой способны отыскать онлайн много полезной информации, или применять другую их самоучителей для работы с ней.
3D Warehouse – модели SketchUp
Ещё один хороший ресурс с моделями, которые подходят для ARCHICAD – 3D Warehouse. Можно загружать модели SketchUp сразу в ARCHICAD в формате .*skp.
Для этого понадобится зарегистрироваться на сайте – https://3dwarehouse.sketchup.com/
Затем скачиваем подходящую модель в формате «SketchUp 2017 Model». Чтобы загрузить модель в ARCHICAD, открываем план этажа и просто перетаскиваем файл модели в 2D окно.
Любая модель, загруженная таким способом, будет доступна через инструмент «Объект». Конечно, она не будет параметрической. Но для нужд дизайн-проекта это не всегда нужно.
Если вы заметили, у модели, которую я загрузил, много лишних линий как в 2D так и в 3D. Их можно убрать, оптимизировав модель.
Как это сделать показано в нашем бесплатном марафоне «Создание дизайн-проекта квартиры в ARCHICAD». Там есть целый раздел, посвященный работе с объектами и моделями. Поэтому регистрируйтесь и проходите уроки бесплатно!
Теперь вы умеете загружать модели в ARCHICAD. А также знаете, где их брать. Если вам этого не достаточно, вы можете ознакомиться со списком сайтов с объектами для ARCHICAD.
ARCHICAD
Отображение фасадов в ARCHICAD
Все настройки отображения элементов на фасаде находятся в параметрах.
Перейти в параметры можно несколькими способами.
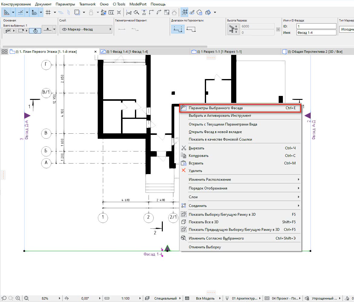
Для того чтобы перейти к настройкам с плана, выберите маркер и кликните по нему правой кнопкой мыши. В появившемся меню выберите первый пункт «Параметры Выбранного Фасада».

Перейти в параметры можно из самого фасада.
Давайте откроем фасад. Это тоже можно сделать несколькими способами. Из меню, нажав правой кнопкой мыши на фасад, выбрать пункт «Открыть Фасад в новой вкладке». Или через панель навигатора.

Чтобы перейти в параметры фасада кликните правой кнопкой мыши в любом свободном месте, из меню выберите «Параметры Фасада…».

Первое что нужно настроить в параметрах, это отображение осей. На фасадах показываются только крайние оси и оси на перепадах высот.
Настройки показа осей находятся на вкладке «ПОКАЗ ОСЕЙ». Выбираем значение «Выбранные» в пункте «Показать Оси по Маркировке». Затем кликаем на кнопку «Выбор элементов…». В открывшемся окне отмечаем оси, которые должны остаться на фасаде. Жмем «ОК».

Также лишние оси можно просто удалить, они будут удалены только на фасаде.
Перейдем на вкладку «ПОКАЗ МОДЕЛИ» и посмотрим, как можно настроить отображение элементов.
Тени на фасаде
Для того чтобы включить тени на фасаде найдите вкладку «СОЛНЦЕ И ТЕНИ» и отметьте пункт «Солнечные Тени». Параметры высота и азимут солнца оставляем по умолчанию равным 45 градусов.

Теперь попробуем различные варианты отображения цвета поверхностей. Эти настройки находятся во вкладке «ПОКАЗ МОДЕЛИ» → «ВИДИМЫЕ ЭЛЕМЕНТЫ».
Белый фасад в ARCHICAD
Чтобы сделать заливку всех элементов на фасаде белыми в пункте «Штриховка Видимых Поверхностей» выбираем значение «Единое Перо». Затем выбираем цвет пера в пункте «Перо Видимых Поверхностей».

Если включить параметр «Векторная 3D-штриховка» поверхности будут отображаться со штриховкой, которая назначена материалу.
Фасад в цвете
Чтобы элементы на фасаде стали цветными в пункте «Штриховка Видимых Поверхностей» выбираем значение «Цвета Собственного Покрытия».
Цвет поверхности будет зависеть от цвета покрытия. Покрытия настраиваются через меню «Параметры» → «Реквизиты Элементов» → «Покрытия…».

Фасад с текстурами в ARCHICAD
Используя только инструмент «Фасад» невозможно создать фасад с исходными текстурами, которые отображаются в 3D-виде.
Для фасадов в ARCHICAD используется векторный механизм отображения. Поэтому единственный выход – создать рабочий лист и заменить обычные штриховки на штриховку-рисунок.
Как работать со штриховками, подробно описано в статье – «Штриховки в ARCHICAD».
Чтобы создать рабочий лист перейдите на фасад. Выберите инструмент «Рабочий Лист», он находится в панели инструментов на вкладке «Документирование». Затем задайте область, после этого в навигаторе появится новый рабочий лист.
В рабочем листе все элементы преобразуются в линии и штриховки и с ними можно работать дальше.

В итоге можно получить такой результат:

На этом все, мы немного разобрались в достаточно обширной теме. Теперь вы сможете создавать и настраивать фасады в ARCHICAD.
Кстати, настройки отображения фасадов мало чем отличаются от разверток. У нас есть отдельная статья на эту тему – «Развертки стен в ARCHICAD».
ARCHICAD
Какие лицензии бывают у ArchiCAD
Совсем недавно у “Архикад” вышло обновление. Теперь на русском языке доступна “ArchiCAD 22”
Но, чтобы пользоваться любой версией программы бесплатно и в полном объеме, важно иметь соответствующую лицензию
У программы “Архикад” существует несколько типов лицензий:
- Коммерческая (триал) – без каких-либо ограничений, со всем набором рабочих функций. Это платная лицензия.
- Учебная (которую чаще всего используют для наработки навыков работы с программой) – равносильна платной версии, без каких-либо ограничений. С этой лицензией можно работать точно так же, как с коммерческой. Единственное отличие — стоит защита с вотермаркой «Создано в учебной версии Архикад», которая печатается на чертежах. Этот водяной знак нельзя отключить.
- Испытательная (с некоторыми ограничениями) – в течение 30 дней можно протестировать работу в “ArchiCAD” на одном устройстве. Если сравнивать с триал (платным пакетом), то здесь стоят следующие ограничения:
- коллективно работать в программе нельзя, так как здесь собственный формат файлов, для каждой отдельной установки “Архикада”;
- при открытии в испытательной версии, файлы созданные в платной версии, преобразуются;
- присутствуют вотермарки при распечатке чертежа, когда файл сохраняется PDF-формате;
- сохранять файлы в формате более ранних версий “ArchiCAD” нельзя.
- ДЕМО-версия “ArchiAD” – идет со значительными ограничениями:
- нельзя сохранить проект “Архикада”;
- чертеж не распечатывается;
- нельзя копировать/вставлять элементы чертежа в проект;
- работать в групповом режиме не представляется возможным.
Справка. Демоверсия “Архикада” включается тогда, когда у ПК нет подключенного ключа защиты (или если он испорчен).
CADstudio
ArchiCAD является лидером среди программ архитектурного проектирования. За годы существования ArchiCAD превратилась в мощную среду, без которой трудно себе представить работу не только современного архитектурного бюро, но и cовременной строительной организации. Курс «Работа в программе ArchiCAD» ориентирован на будущих архитекторов-дизайнеров и дизайнеров-разработчиков, способных самостоятельно создавать проекты жилых и нежилых помещений.
Выпускники курса обучения ArchiCAD могут начать активную работу в строительных, проектных, торговых компаниях, а также в дизайн-студиях.
Бесплатный Курс: «Работа в программе ArchiCAD» проводится в формате WEB-конференции. Обучение проводится частями по субботам и воскресеньям по 3 часа (с 18-00 до 21-00 по Московскому времени).
Школа Алексея Меркулова
Бесплатные уроки ARCHICAD для начинающих
В этой категории представлены актуальные уроки Архикад, которые подойдут как для начинающих пользователей, так и более опытных. Материал содержит не только текстовое описание команд и инструментов, но также подробные видео уроки ARCHICAD, раскрывающие логику работы программы.
Многие уроки ArchiCAD позволят вам быстро освоить тему, разобраться с вопросами и на практике добиться желаемого результата. Такой подход в проектировании и работе над созданием BIM-модели здания дает вам реальную возможность изучить Архикад не выходя из дома. Материал постоянно обновляется и пополняется новыми уроками, которые четко раскрывают тенденции программы ArchiCAD.
Pentaschool
ArchiCAD для дизайнера интерьера: создание проекта
Доступ к материалам
Бессрочный доступ к лекциям пройденного курса. Доступ к вебинарам на весь период обучения + 3 месяца после.
Обучение в удобное время
Нет привязки к жесткому графику, можно выполнять задания в любое время.
Индивидуальная проверка заданий
Все практические работы проверяются преподавателем, по каждой из них дается обратная связь. Все практические работы проверяются преподавателем, по каждой из них дается обратная связь.
Курс поможет:
- Освоить программный пакет ArchiCAD ― мощный инструмент для проектирования и визуализации интерьеров;
- Научиться создавать детальные чертежи планов, разрезов и развёрток интерьера;
- Работать с библиотеками стандартных и импортированных элементов интерьера;
- Создавать визуализацию разработанного интерьера, настраивать виды;
- Оформлять проектную документацию, формировать папку дизайн-проекта, выводить документы на печать.
Уверенное использование ArchiCAD (пошаговое обучение)
Профессиональный инструмент, используемый для проектирования строительных сооружений. Имеет обширный набор инструментов и передовых функций, необходимых архитектору при создании проектной документации и визуализации объекта в трехмерном пространстве. Интерфейс приложения выполнен эргономично и продуманно. Изучив уроки для начинающих Архикад, пользователи смогут управляться с несложными моделями. Эти базовые знания помогут в будущем разобраться в крупномасштабных объектах. Раскрыть весь потенциал редактора и получить необходимые знания Вам помогут следующие видеокурсы.
Результаты тестов видеокарт с ARCHICAD 24
Ниже приведены результаты тестирования производительности различных видеокарт, установленных в компьютерах стандартной конфигурации с мониторами различного разрешения. Измерения выполнялись с определением однопотоковой производительности процессора. Видеокарты проходили тестирование на проектах небольших (250 000 полигонов), средних (1 600 000 полигонов) и крупных размеров (10 000 0000 полигонов) в 64-разрядной операционной системе Windows 10. Значение FPS означает скорость количества кадров в секунду при 3D-навигации в ARCHICAD.
Помимо мощности видеокарты присутствуют и иные факторы, влияющие на скорость 3D-навигации. Основная роль при 3D-навигации отводится центральному процессору (CPU), передающему данные на графический процессор (GPU) для обработки и вывода изображения. Если центральный процессор не может достаточно быстро передавать данные на графический процессор, то становится невозможно использовать всю мощь видеокарты
Поэтому во избежание эффекта бутылочного горла очень важно правильно подобрать сочетание центрального и графического процессоров. Пожалуйста, обратите внимание, что при 3D-навигации задействуется только одно ядро процессора. По этой причине важно учитывать показатель однопотоковой производительности центрального процессора
Еще одним важным фактором, влияющим на скорость 3D-навигации, является разрешение монитора. Чем выше разрешение монитора, тем больше нагрузка на центральный и графический процессоры. Повышение разрешения увеличивает размеры кадра, который должен обработать графический процессор. Поэтому скорость (количество кадров) снижается при увеличении разрешения.
Наконец, важен объем памяти видеокарты. При открытии файла и переходе в 3D-окно сначала используется память видеокарты, а по мере ее заполнения начинается использование оперативной памяти (RAM), значительно медленнее обрабатывающей 3D-операции. Поэтому желательно избегать вовлечения оперативной памяти в эти операции, то есть памяти видеокарты должно быть достаточно для обработки модели. Правила или строгого соотношения между размерами файла проекта и нагрузкой на видеокарту не существует, так как ARCHICAD сохраняет информацию о параметрах объектов модели, а не координаты полигонов. Для огромных файлы, включающих большое количество параметров, требуются большие объемы памяти. Параметры некоторых геометрических объектов, настроенные на высокое разрешение или на большую сегментацию, создают дополнительную нагрузку. Возможны ситуации, когда размеры самой модели не превышают несколько килобайт, но используемые в ней параметры и текстуры требуют большого количества видеопамяти. Поэтому необходимые объемы памяти видеокарты не всегда находятся в прямой зависимости от размеров модели. Мы рекомендуем использовать для проектов средних размеров видеокарты с объемом памяти не менее 1 ГБ, но если вы работаете с мониторами сверхвысокого разрешения, то этот объем необходимо как минимум удвоить.
Ошибки начинающего пользователя
В лекции представлены часто встречающиеся ошибки, которые допускают изучающие 3D моделирование:
1. Использование параллельного ракурса (аксонометрии) вместо перспективы. В результате чего дом получается перекошенным и выглядит не презентабельно.
2. При создании визуализации земельный участок делают очень маленький, поэтому общая фотография выглядит подвешенной в воздухе.
3. Слишком ровный горизонт. Для более выгодной подачи рисунка, лучше горизонт сделать с холмами либо закрыть деревьями.
4. Отсутствие объектов окружения и территории. Для полноценного восприятия композиции, здание лучше преподносить в максимально приближенном к действительности виде (помещают лавочки, машины, дорожки).
5. Использование стандартных объектов библиотеки Archicad.
6. При неверно заданных настройках фотография получается размытой.
7. Применение базовых фотографий Archicad.
8. Слишком чёткая линия горизонта, отсутствие дымки и атмосферы.



